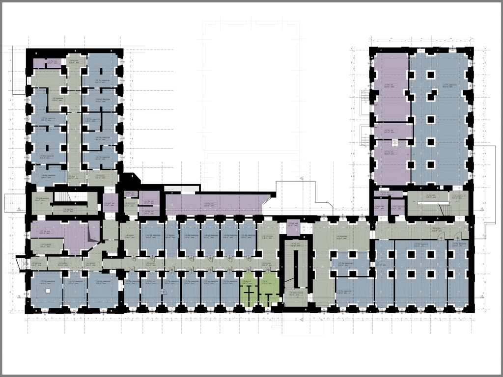
Dolne Młyny Budynek Magazynowy

   Inwentaryzacja obiektu, elewacji oraz więźby dachowej ,
     -Powierzchnia zabudowy: ~1065 m2,
     -Powierzchnia inwentaryzowana: ~5098 m2,
     -Budynek 4 kondygnacyjne z nieużytkowym poddaszem,