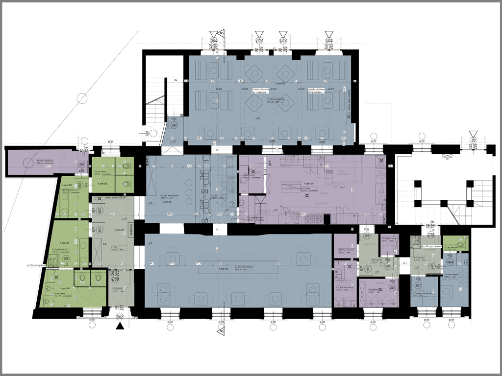
Enklawa

   Restauracja - wraz z zapleczem gastronomicznym i pełną kuchnią oraz biurem,
     -Powierzchnia lokalu: ~ 300 m2,
     -Ilość kondygnacji objętych opracowaniem: 1,
     -Ilość koncepcji projektowych: 3,